Komerční prostor (52 m²), s terasou (46 m²) Allrisk Meridiem, ul. Komárovská Brno

  • 19 900 Kč
Komárovská
Komerční prostor (52 m²), s terasou (46 m²) Allrisk Meridiem, ul. Komárovská Brno
Komárovská
  • 19 900 Kč

Popis

Allrisk Meridiem je developerský projekt roku 2023. Jedná se o komplex objektů pro podnikání i rodinné bydlení mezi ulicemi Svatopetrská a Komárovská.

Projekt s jedinečnou inovativní fasádou, za kterou vyhrál cenu za rok 2025.

Moderní polyfunkční objekty jsou tvořeny částmi A1, A2, A3 a B. Společně vytvářejí nový funkční veřejný prostor s výraznou architektonickou dominantou.

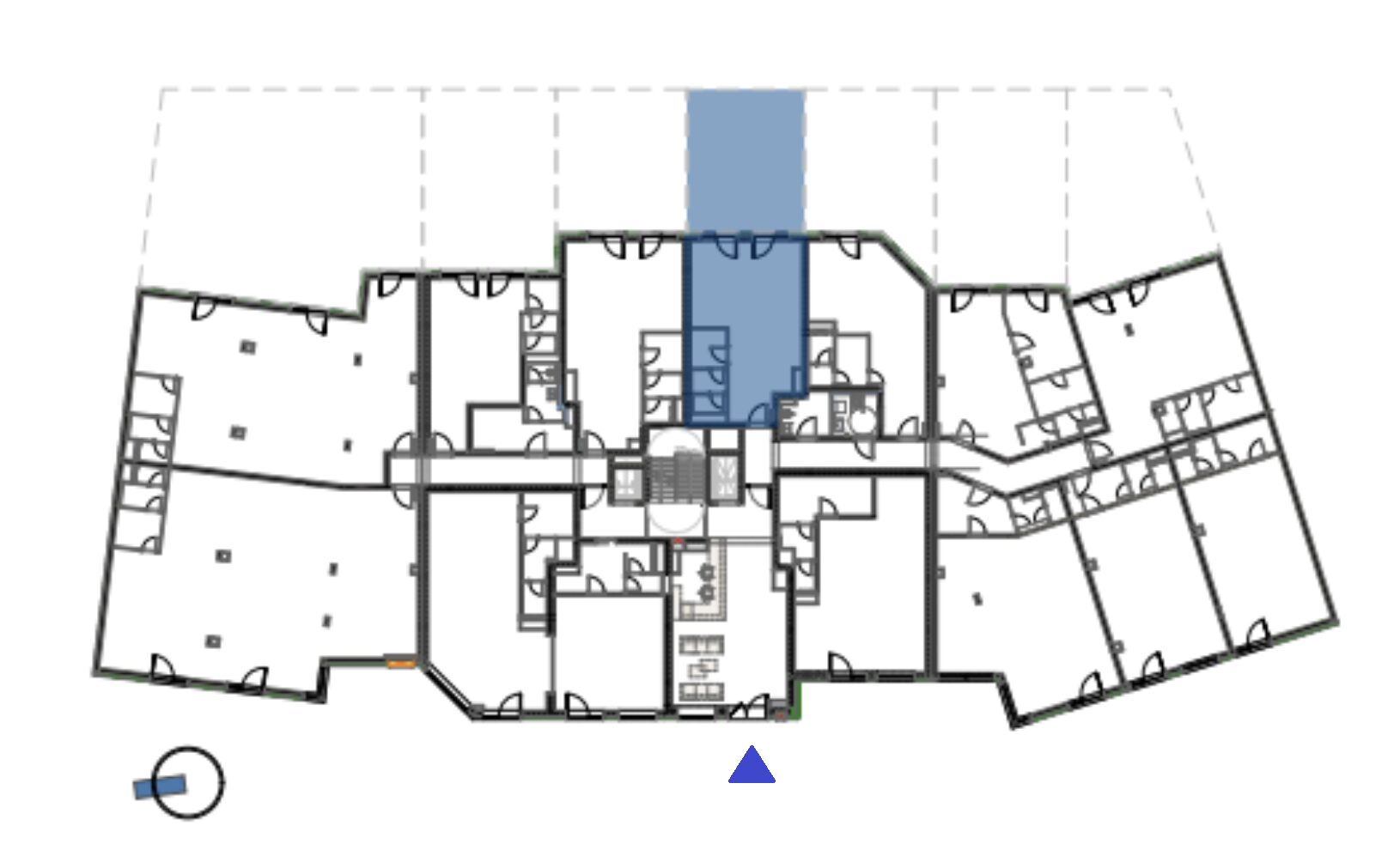
Prostor k pronájmu se nachází v prostřední budově A1. Ve stavu Shell and Core.

Dokumenty

A1.K11 Komerční prostor
Provedení SHELL N CORE
Výpočtový list
podklady od architekta ke kolaudaci
Vzduchotechnika A1.03_MERIDIEM_PŮDORYS 1.NP
  • Adresa Komárovská Brno
  • PSČ 602 00

Energetický štítek

  • Energetická třída: B
  • A+
  • A
  • | Energetická třída B
    B
  • C
  • D
  • E
  • F
  • G
  • H

Detaily

Updated on 6 prosince, 2025 at 6:56 am
  • Cena: 19 900 Kč
  • Užitná plocha: 52 m²
  • Plocha pozemku: 46 m²
  • Datum výstavby: 2025

Compare listings

Compare